段差をなくして安心安全、広く開放的なマンション
お客様のご要望
お風呂を広くしたい。
トイレと洗面所の出入口を別々にしたい。
可能であれば、すべて段差をなくしてバリアフリーにしたい。
リフォーム詳細
リフォームデータ
| リフォーム内容 | マンションフルリフォーム、内装リフォーム、キッチンリフォーム、バスルームリフォーム、洗面リフォーム、トイレリフォーム | ||
|---|---|---|---|
| 費用 | 10,815,000円(税込) | 工期 | 約3ヶ月半 |
| 現場名 | 福岡市東区 M様邸 | 担当 | 福岡東ショールーム |
| 商品仕様 |
キッチン:LIXIL リシェル 浴室:LIXIL リノビオV 洗面化粧台:LIXIL クレヴィ トイレ:LIXIL Jフィット フローリング:朝日ウッドテック ライブナチュラルMSX 建具:LIXIL ラシッサS |
||
リフォームのポイント
躯体の梁や柱の影響で生じたデッドスペースをニッチとして活用したり、キッチンとカップボードを組み合わせてL型に配置するなど、空間を有効活用する工夫を行いました。
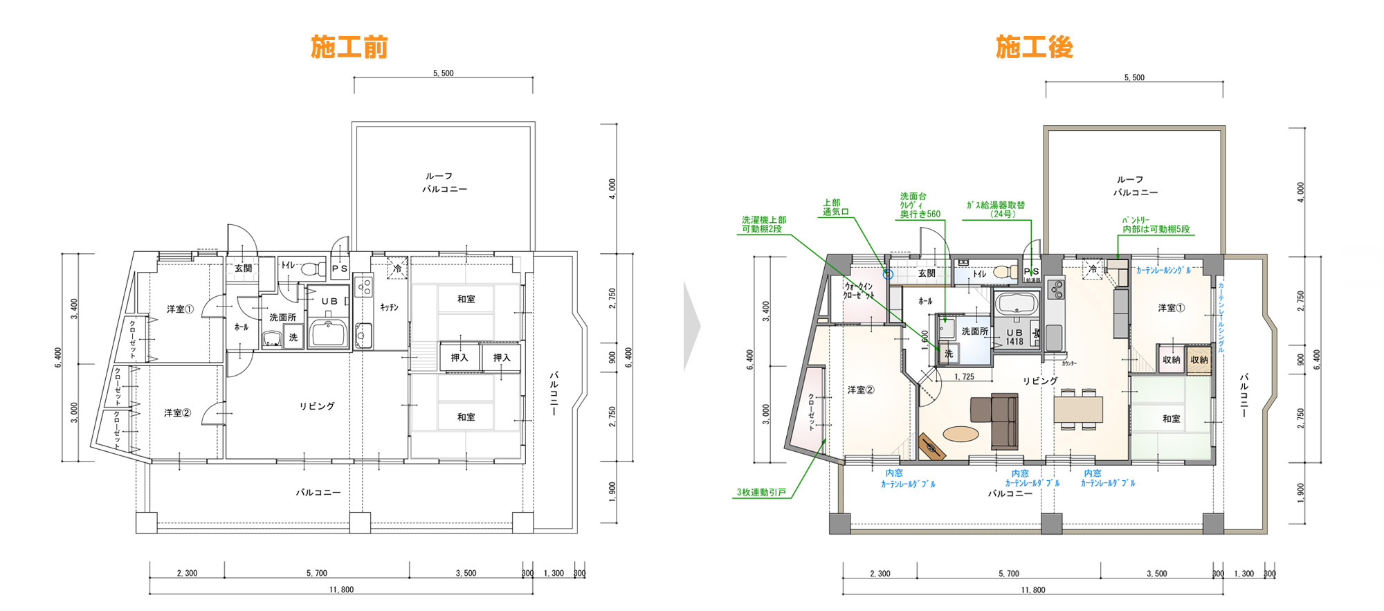
図面

施工前











施工後









お客様の声
イメージしていたよりも広くなり、段差もまったくなくなって良かったです。
工事中の追加の要望にも対応していただき、ありがとうございました。
担当スタッフより一言

この度はリフォーム工事のご依頼をいただき、誠にありがとうございました。
長期間の工事となり、お客様にはご不便をおかけしたかと思いますが、工程どおり無事に完了し、お引き渡しができましたことを安心しております。
また、お喜びのお声をいただき大変嬉しく思っております。
今後も何かご相談、ご依頼がありましたらお気軽にお問い合わせください。
関連するニッカホーム全体の施工事例





















